第1章
プランニング1 平面計画
01. 平面計画の進め方と基礎知識
02. 設計条件の確認の意味とは何か
03. 業種業態別各スペース配分と割合
04. キッチンの効率化と大きさの関係
05. 客席スペースを決定する
06. 客席の広さは業種業態や客単位に左右される
07. 業種業態に合わせた客席スタイルと寸法を把握する
08. テーブル、カウンターと椅子まわりの寸法を把握する
09. ソファ、ベンチシート席を計画する上での基準寸法を把握する
10. 客席形態と効率的計画のポイント
11. 客席まわりの寸法基準を知ること
12. 客動線とサービス動線の関係と寸法を把握すること
13. サービスカウンターと作業台の基準寸法を把握すること
14. ゾーニング(ラフスケッチ)計画の意義と重要性
15. これまでの設計の進め方と「並行設計」の違いを理解する
16. ゾーニング(ラフスケッチ)計画の実践的手順とチェックポイント
17. ファサード(入り口)デザインの重要性と役割
18. ローコスト計画のポイント
19. 店づくりに対する投資と採算の知識を持つ
20. テナント工事区分と範囲を理解する
21. 設計から開店までのスケジュールの立て方
22. 設計監理で注意しなければならないこと
23. 工程管理で注意しなければならないこと
プランニング2 厨房計画
01. 厨房に関する基礎知識
02. 飲食店の厨房面積の妥当性とは
03. 飲食店のサービスと料理提供の仕組みを理解する
04. 厨房の各施設機能と役割を理解すること
05. 収納スペースの確保と工夫
06. 業種業態別食器数と算定基準
07. オープンキッチンのメリット&デメリット
08. 見積書の項目チェックと査定方法
09. 厨房工事見積書の査定方法と注意点
プランニング3 設備計画
01. 電化厨房導入の注意点
02. 厨房排気フードの排気容量設定の基本的考え方と注意点
03. 業種業態によって異なる排気設備の注意点
04. 厨房内防水の知識と漏水事故への配慮と注意点
05. 物件の用途変更に際しての注意点
06. 知っておかなければならない厨房設備に関わる関連法規と注意点
第2章
コストプランニング
01. デザイナーとして知っておきたい事業収支計画の基礎知識
02. 開店にかかる費用項目を理解すること
03. 損益分岐点を算出する計算式
04. マネジメント相談室-1
05. 事業収支項目と内容
06. 損益分岐点の意味を知る
07. マネジメント相談室-2
08. マネジメント相談室-3
09. デザイナーの陥りやすい勘違い
10. 仕事は契約書を結ばないで計画してはならない
11. 「クライアントに喜ばれてこそ」良い仕事をした評価である
12. クライアントとの接し方教えます/ワンマン社長の場合
13. 施工業者の監督とどのように関わるか
第3章
事例集/業種業態別平面計画
01. おでん居酒屋
02. 居酒屋魚市場
03. 炙り居酒屋
04. 地鶏居酒屋
05. お好み焼き居酒屋
06. 生け簀鮮魚居酒屋
07. 創作和食居酒屋
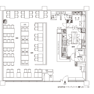
08. 自然派和食バイキング
09. 鮨屋
10. 蕎麦屋
11. ステーキレストラン
12. カジュアルフレンチレストラン
13. 生麺スパゲティー専門店
14. イタリア(トラットリア)料理店
15. インド料理レストラン
16. 中華料理店
17. 炭火焼肉店
18. 餃子専門店
19. 上海らーめん店
20. グルメバーガー
21. 焼酎バー
22. 洋風スタンドバー
23. ライブジャズバー
24. 和風甘味カフェ
25. カフェレストラン
26. セルフカフェ
27. イタリアンデリ&カフェ
28. フレッシュジュースファクトリー
29. 洋風デリカテッセン
30. 和食総菜と弁当店
おすすめ商品
カフェ開業 パーフェクトマニュアル
販売価格:¥ 3,241
飲食店の企画プロデュース 資料作成と設計チェックリスト
販売価格:¥ 3,900
スケッチから学ぶ新しい飲食店づくり
販売価格:¥ 3,714
店舗設計製図講座
販売価格:¥ 3,200
飲食店のキッチン計画チェックポイント <改訂版>
販売価格:¥ 3,495
















